Under 70M2

Introducing: Kōpua

Icon
0
Carpark
Icon
2
Bedrooms
Icon
1
Bathrooms
Icon
1.5
Lounge

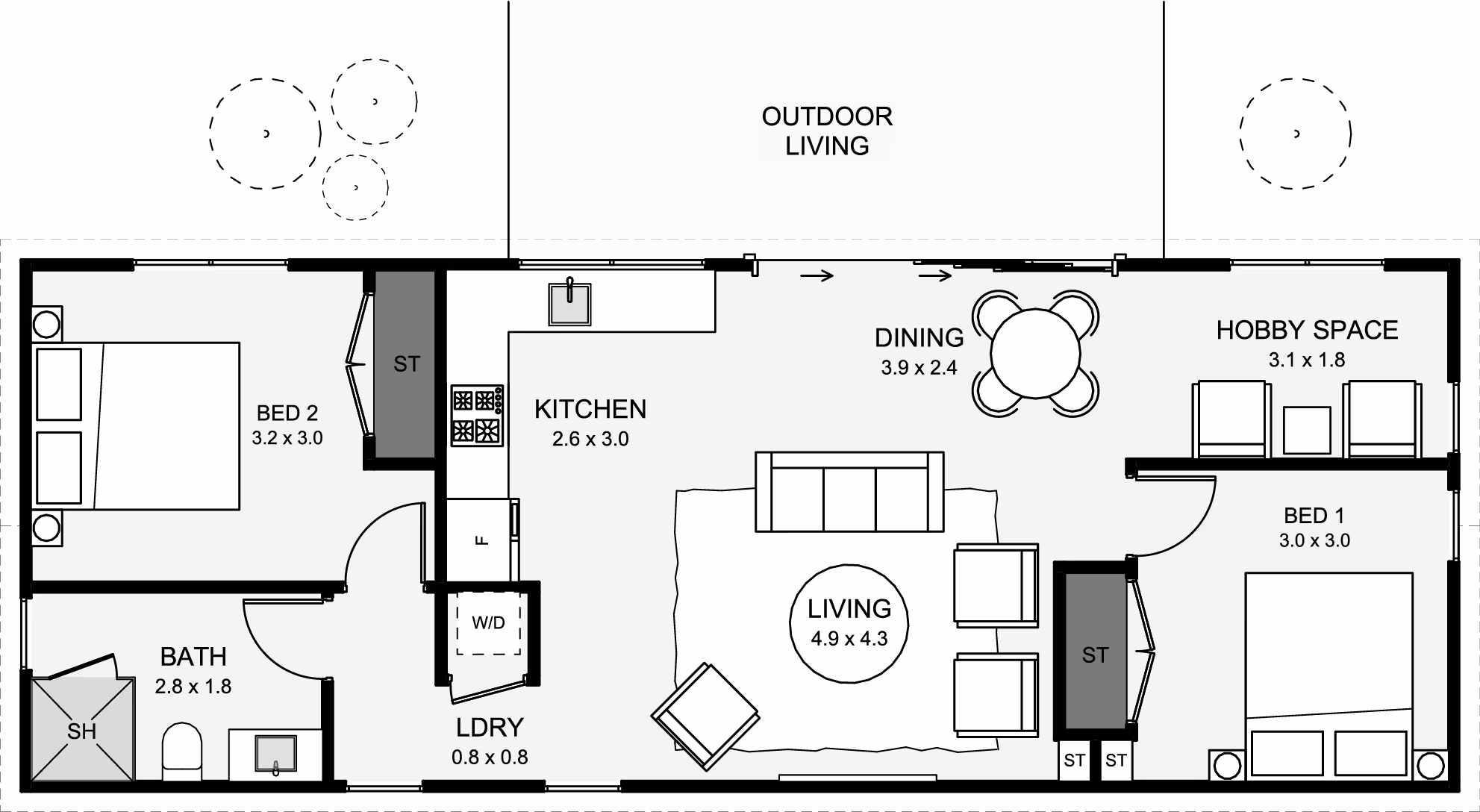
Floor Area: 70m2 (13.8m x 5.1m)

Kōpua: Strong Presence, Lasting Comfort

This three-bedroom home has bold styling. The main living area is an open plan with large sliding doors opening out onto a covered outdoor living space. The master bedroom is positioned separate from other rooms and includes a walk-in wardrobe and ensuite. The kitchen includes a walk-in pantry. The double garage includes a countersunk laundry and access outside. If you are looking for a three-bedroom home with a strong presence, that’s truly timeless, you’ve just found it!

Icon information | New Leaf Builders

Curious About the Kōpua?

Get in touch to explore the features, layout options, and possibilities behind this clever compact home.

Connect with us

Thank you! Your submission has been received!
Oops! Something went wrong while submitting the form.